Početna
Tipovi kuća
Tehnički opis
Cene kuća
Reference
Kontakt
Montažna kuća Tip 36
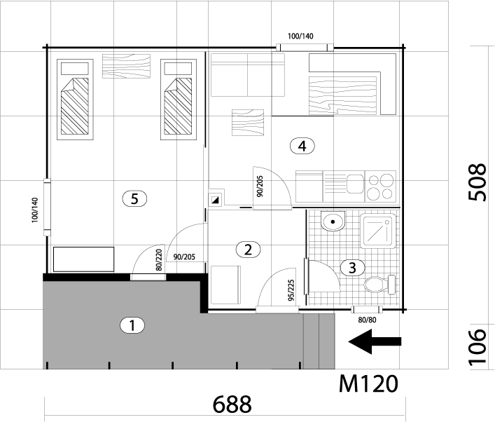
Model
Tip 36
Broj soba
2
Bruto površina
40.66 m2
Neto površina
36.36 m2
Br.
Prostorija
Površina
1
Terasa
7.50 m2
2
Predsoblje
3.24 m2
3
Kupatilo
3.06 m2
4
Dnevna soba
10.35 m2
5
Spavaća soba
12.21 m2