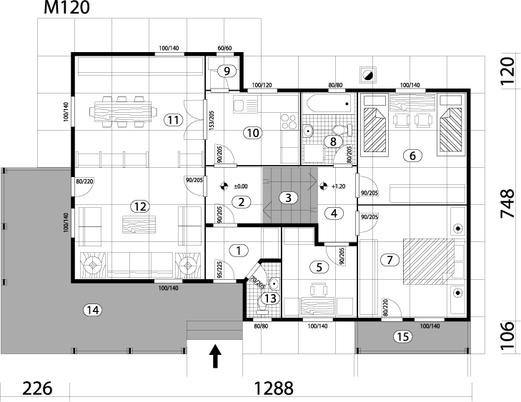
| Model | Tip 110 |
| Broj soba | 7 |
| Bruto površina | 125.89 m2 |
| Neto površina | 115.81 m2 |
| Br. | Prostorija | Površina |
|---|---|---|
| 1 | Vetrobran | 3.37 m2 |
| 2 | Predsoblje | 3.24 m2 |
| 3 | Stepenište | 3.24 m2 |
| 4 | Galerija | 2.88 m2 |
| 5 | Radna soba | 5.89 m2 |
| 6 | Dečija soba | 12.42 m2 |
| 7 | Spavaća soba | 12.42 m2 |
| 8 | Kupatilo | 3.91 m2 |
| 9 | Ostava | 1.21 m2 |
| 10 | Kuhinja | 6.90 m2 |
| 11 | Trpezarija | 14.76 m2 |
| 12 | Dnevni boravak | 14.76 m2 |
| 13 | Toalet | 1.88 m2 |
| 14 | Terasa | 25.02 m2 |
| 15 | Balkon | 3.91 m2 |